您当前的位置:首页 > 产品中心 > 门式起重机

MH型3~16t电动葫芦门式起重机(箱型式)

MH型电动葫芦门式起重机与CD1、MD1等型号的电动葫芦配套使用,是一种有轨运行的中小型起重机。

核心优势

安全稳定
性能可靠
工况定制
售后无忧

官方免费咨询热线

020-82826060

产品概述/ zhongke

 

一、 产品概述

1、 MH型电动葫芦门式起重机与CD1、MD1等型号的电动葫芦配套使用,是一种有轨运行的中小型起重机。

2、 适用起重量3-16吨,适用跨度12-30米,工作环境-20℃- +40℃内。

3、 本产品为一般用途起重机,多用于露天场所及仓库的装卸或抓取物料。

4、 本产品有地面操纵和室内操纵两种形式。

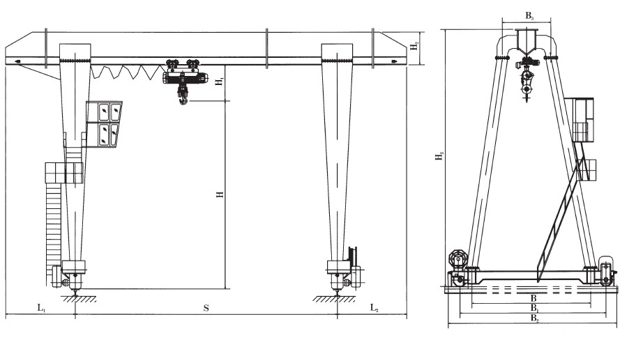
二、产品简图与技术规格(10t)

亚洲午夜精品A片久久WWW慈禧

亚洲午夜精品A片久久WWW慈禧

亚洲午夜精品A片久久WWW慈禧

亚洲午夜精品A片久久WWW慈禧

亚洲午夜精品A片久久WWW慈禧

亚洲午夜精品A片久久WWW慈禧

亚洲午夜精品A片久久WWW慈禧

中科重工成功案例

注起重设备定制就解决方案提供商

起重设备定制解决方案提供商

注起重设备定制就解决方案提供商

全天候服务

24小时服务热线,随时接受维护通知,技术人员可在24小时以内抵达现场,解决故障。

现场安装指导

设备运输至用户现场,由斯泰尔派工程技术人员到安装现场进行安装指导和质量监督。

免费技术培训

根据您的需要,免费为您提供技术培训;包括现场指导安装调试时的现场培训。

终身维修服务

保修12个月,终身维修服务超出保修期,材料费及维修费向用户合理收取。

中科重工实力看得见

注起重设备定制就解决方案提供商

公司创建于2017年,注册资金1.16亿元,各厂区总计占地面积近50000㎡,现有员工200余人

公司配备现代化生产车间,年生产能力可达上万台

众多实力客户的选择

注起重设备定制就解决方案提供商